忍者ブログ
×

[PR]上記の広告は3ヶ月以上新規記事投稿のないブログに表示されています。新しい記事を書く事で広告が消えます。



こちらは当ブログにご来訪下さっている方にはお馴染みの裏庭ですが
浄化槽のすぐ近くにあるこの一角はかつてはアジサイが豪華に植えて
あった場所です。 しかし何年も過ぎていつの間にかこのような
雑草や木が生え、見るも無残な姿になってしまいました。
でもここはいずれ土間コンクリートでスッキリさせようという計画の
区域なので一度は地業をするのだからいっそ花壇を造り直してみよう
という事にしました。
本当はレンガで可愛いものにしたいのですが今の私の技量では無理と
判断してコンクリートブロックの花壇にする事に決定。
先ずは草取りと木の引っこ抜きから。

 約1時間掛けて一応スッキリしました。
 写真にあります浄化槽は私のDIYの
 リファレンス(原点)。

 このデコボコの仕上げ面を見る度に
 体の奥から力が湧いてきます。

 で、ここからどうするかという事ですが
初めに花壇にする区画を大体で決めました。
ポイントは「花壇の高さを地面から400ミリ位にする」
という事と「既存のブロック塀を造作物の一部にはせず、花壇自体を
独立した囲いの構造にする」という事です。
何と言っても我が家のブロック塀は古いから、いくら土の重さだといっても
いつどうなるかわからないんです。
だからもし、ブロック塀を撤去しなくてはならなくなった時にそれぞれを
壊しやすいようにとの考えです。

 

区画が決まったら杭を打ってここから「遣り方」を張りました。
今回は造作物の高さがあるので水盛りでレベルを取ろうと考えましたが
肝心の電池が切れていてレーザーレベル君を使用しました。
(安物なので昼間は赤いラインが殆ど見えないけど専用の赤いメガネ
  を使うと見えます)
浄化槽の周りに埋設されている配管にも注意しながらの作業です。

 

レベルが取れたら次に貫き板を固定します。
この作業は地味ですが、ここをチャンとやっておかないと
後で泣く事になりますね。



今回は対面が既存のブロック塀なので水糸を張る為にこのような
格好になりました。
(他に方法が思いつかなかった)
塀に打ちつけるのは適当な板で、コンクリート釘でガツンと
やりました。 釘は頭を少しだけ残したところまで打ち込みました。
(板は適当でも並行が出ている板です)
 


何度も見直してみると「アレッ?」という事が良くあります。
機械加工でも「加工の前.中,後.の確認」は基本です。
これをやらないとベテランでもミスる場合があります。
ですから素人の私は何回も確認します。



2時間以上掛かりましたが遣り方が完了しました。
水糸を張って今日はここまで。

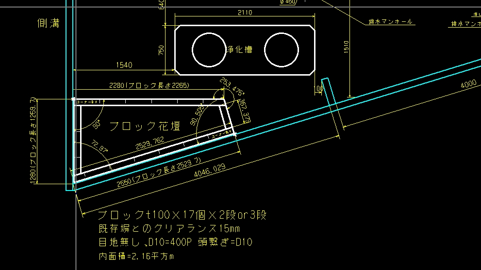
 CAD図ではこうなりますが
 これはあくまでも計画。

 実際に作業を進めてゆく間には
 いろんな事が起きてきます。
 で、この区域をコンクリート土間にする為に地盤を掘り下げなくてはなりません。
その時にある程度の土を廃棄しなくてはならないのですが
その土をこの花壇に投入すればカサを稼ぐ事が出来ますし、
園芸用の土はママが売るくらい持っているのでそれを入れれば
あとは足らない分だけ購入という事になります。
残土の持ってゆく所が無いという事情もあってブロック花壇の
製作開始です。
PR
この記事にコメントする
お名前
タイトル
文字色
メールアドレス
URL
コメント
パスワード   Vodafone絵文字 i-mode絵文字 Ezweb絵文字
最新記事
(12/24)
(12/23)
(12/22)
(12/21)
(12/18)
(12/17)
(12/16)
(12/15)
(12/14)
(12/13)
(12/12)
(12/11)
(12/10)
(12/09)
(12/08)
(12/07)
(12/04)
(12/03)
(12/02)
(12/01)
(11/30)
(11/27)
(11/26)
(11/25)
(11/24)
最新記事のフィルム
メール
プロフィール
DIYは初心者です
HN:
MCヨッチャン
性別:
男性
職業:
半人前のマシニスト
趣味:
写真、DIY
自己紹介:
「半人前のマシニスト」
MCヨッチャンのBLOGへ
ご来訪下さり
有難うございます。
機械加工が本業のサラリーマンです。
50代半ばを過ぎて外構DIYに出逢い、その難しさや楽しさを書き残そうとの思いで記しています。
拙い記事ばかりですがご意見或いはご感想など頂戴できれば幸いです。
カレンダー
10 2025/11 12
S M T W T F S
1
2 3 4 5 6 7 8
9 10 11 12 13 14 15
16 17 18 19 20 21 22
23 24 25 26 27 28 29
30
ブログ内検索
カウンター
お天気情報
忍者ポイント広告
バーコード
最新CM
[03/10 MCヨッチャン]
[02/28 素人の左官]
[02/17 MCヨッチャン]
[02/13 素人の左官]
[01/22 MCヨッチャン]
[01/16 かっちゃん]
[10/11 MCヨッチャン]
[10/08 かっちゃん]
[09/26 MCヨッチャン]
[09/24 素人の左官]
[08/28 MCヨッチャン]
[08/27 かっちゃん]
[06/21 ヨッチャン]
[06/20 素人の左官]
最新TB
FX NEWS

-外国為替-

Copyright © [ 「半人前のマシニスト」☆ MC ヨッチャンのBlog ] All rights reserved.
Special Template : 忍者ブログ de テンプレート and ブログアクセスアップ
Special Thanks : 忍者ブログ
Commercial message : [PR]