×
[PR]上記の広告は3ヶ月以上新規記事投稿のないブログに表示されています。新しい記事を書く事で広告が消えます。
ウッドデッキDIYチャレンジ中の
MCヨッチャンです。
で、その私が作ろうとしているウッドデッキの
設計が完了しましたので画像にしてみました。
で、その私が作ろうとしているウッドデッキの
設計が完了しましたので画像にしてみました。
大きさとしては設置できる場所の制約が
あるのでこれは自ずと横幅が約4000ミリ
奥行きが約3000ミリ。
そして高さは母屋の軒との相談に
なりますが凡そ3000ミリという規模です。
デッキ本体はオールハードウッド。
屋根材としては中空ポリカを採用する予定です。
まあ、最後まで自分で作る事が出来るかどうか
分からないのであくまでも予定ですが。。。
上の写真、真っ黒ですがクリックすると
大きな写真になりますのでそれを見て頂くと。
これが沓石の配置図です。
機械加工用CADで書いたものです。
先ずは如何にしてこれを忠実に再現した施工が
出来るかですね。
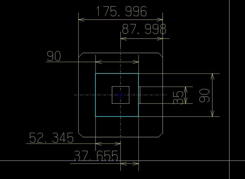
で、これがその沓石と呼ばれるものです。
真上から見たいわゆる上面図ですがよく見て下さい。
私、この沓石が70ミリ角材用だという事を
知らずに購入しました。
中央右よりの所に35幅の箇所がありますが
これが「羽子板」とばれる
束や柱を横から固定する板です。
この羽子板に90角の柱をピッタリ寄り付かせても
沓石の中心と柱の中心は合いません。
しかしウッドデッキを作っている方のブログなどを
拝見する限りこのタイプの沓石を
使用されている場合が多いんです。
皆さんこの事を知った上で使用されて
いるんでしょうか。不思議です。
只、この沓石の中心と柱の中心はズレている事を
初めから見込んで施工すれば何の問題もないです。
なので作業開始。
取り敢えず、犬走りの表面に
「この辺りかなあ?」
という場所に目星をつけて凡その傾斜も確認。
それで決まったら沓石の下にモルタルを敷いて
水平器を使って沓石の起点となる位置に
正確に設置しました。
この場合は玄関ポーチからの距離と
母屋の基礎からの距離と直角、
そして沓石の水平を同時に求めるという
素人には結構難儀な作業です。
まあ、私はこのようにウッドデッキの下を
土間コンにしましたので土の上に設置する事を
思えば数倍は楽なんです。
設置に要する時間は1カ所凡そ10分程度でした。
本日はこの居間掃出し窓側の2個の設置を
完了しました。
今後の作業の全ての基準になる平行基準なので
慎重に行いました。
PR
この記事にコメントする
最新記事
(12/24)
(12/23)
(12/22)
(12/21)
(12/18)
(12/17)
(12/16)
(12/15)
(12/14)
(12/13)
(12/12)
(12/11)
(12/10)
(12/09)
(12/08)
(12/07)
(12/04)
(12/03)
(12/02)
(12/01)
(11/30)
(11/27)
(11/26)
(11/25)
(11/24)
ガンバリンク
最新記事のフィルム
メール
プロフィール
DIYは初心者です
HN:
MCヨッチャン
性別:
男性
職業:
半人前のマシニスト
趣味:
写真、DIY
自己紹介:
「半人前のマシニスト」
MCヨッチャンのBLOGへ
ご来訪下さり
有難うございます。
機械加工が本業のサラリーマンです。
50代半ばを過ぎて外構DIYに出逢い、その難しさや楽しさを書き残そうとの思いで記しています。
拙い記事ばかりですがご意見或いはご感想など頂戴できれば幸いです。
MCヨッチャンのBLOGへ
ご来訪下さり
有難うございます。
機械加工が本業のサラリーマンです。
50代半ばを過ぎて外構DIYに出逢い、その難しさや楽しさを書き残そうとの思いで記しています。
拙い記事ばかりですがご意見或いはご感想など頂戴できれば幸いです。
カレンダー
| 10 | 2025/11 | 12 |
| S | M | T | W | T | F | S |
|---|---|---|---|---|---|---|
| 1 | ||||||
| 2 | 3 | 4 | 5 | 6 | 7 | 8 |
| 9 | 10 | 11 | 12 | 13 | 14 | 15 |
| 16 | 17 | 18 | 19 | 20 | 21 | 22 |
| 23 | 24 | 25 | 26 | 27 | 28 | 29 |
| 30 |
ブログ内検索
カテゴリー
カウンター
忍者ポイント広告
最新CM
[03/10 MCヨッチャン]
[02/28 素人の左官]
[02/17 MCヨッチャン]
[02/13 素人の左官]
[01/22 MCヨッチャン]
[01/16 かっちゃん]
[10/11 MCヨッチャン]
[10/08 かっちゃん]
[09/26 MCヨッチャン]
[09/24 素人の左官]
[08/28 MCヨッチャン]
[08/27 かっちゃん]
[06/21 ヨッチャン]
[06/20 素人の左官]
最新TB
アーカイブ